|
Neonacqua (fontana da campeggio)
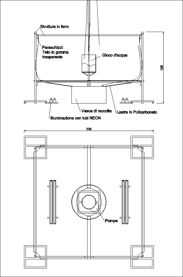
The fountain neonacqua is thought to be a temporary installation for several happenings (fairs, parties, etc.). The vertical jet changes periodically from a height of 80 cm to 3 m in a few minutes.
Through the transparent fountain body one may discover the simple but an unusual construction principles. This fountain has been shown at tazmovement, esterni ...
|
|
Click here for the Tecnical Image
|
|
Show images |

esterni, sciopero telespettatori - Rotonda della Besana. Milan, 2003
|

esterni, sciopero telespettatori - Rotonda della Besana. Milan, 2003
|

esterni, sciopero telespettatori - Rotonda della Besana. Milan, 2003
|

esterni, sciopero telespettatori - Rotonda della Besana. Milan, 2003
|

esterni, sciopero telespettatori - Rotonda della Besana. Milan, 2003
|

esterni, sciopero telespettatori - Rotonda della Besana. Milan, 2003
|

tazmovement, Milan - Stazione Lambrate, 2003
|

tazmovement, Milan - Stazione Lambrate, 2003
|

tazmovement, Milan - Stazione Lambrate, 2003
|

tazmovement, Milan - Stazione Lambrate, 2003
|

tazmovement, Milan - Stazione Lambrate, 2003
| | | | |
|
|
Show videos |
|
|
|